



La chaudière à fioul à condensation Domusa JAKA HFD 20 CONDENS OD est spécialement conçue pour une installation en extérieur, offrant une solution pratique et efficace pour les logements où l'espace intérieur est limité. Avec une puissance utile de 19,1 kW à 80°C/60°C, ce modèle combine une technologie de condensation avancée, des matériaux de haute qualité et un design pensé pour résister aux intempéries. Son rendement supérieur et sa certification énergétique de classe A en font un choix de premier plan pour ceux qui recherchent efficacité, économies et durabilité.
La chaudière utilise l'effet de condensation pour récupérer la chaleur des gaz de combustion, atteignant des rendements supérieurs à 103 % sur le pouvoir calorifique inférieur (P.C.I.). Ce processus réduit significativement la consommation de combustible, permettant des économies allant jusqu'à 30 % par rapport aux chaudières traditionnelles. Son efficacité élevée est certifiée par la directive européenne ErP, garantissant un faible impact environnemental et des coûts d'exploitation réduits.
Le design de la Domusa JAKA HFD 20 CONDENS OD est optimisé pour résister aux conditions climatiques défavorables. Ses enveloppes étanches sont recouvertes d'un revêtement EPOXY, offrant une protection durable contre l'humidité, la pluie et les variations de température. De plus, son étanchéité assure un fonctionnement sûr et efficace dans n'importe quel environnement.
Le corps de la chaudière est fabriqué en fonte, un matériau garantissant une longue durée de vie même dans des conditions exigeantes. Le condenseur en acier inoxydable assure un haut rendement thermique, tandis que le design modulaire facilite l'entretien et prolonge la durabilité de l'équipement.
Grâce à son brûleur étanche et à l'isolation acoustique de haute qualité, la chaudière offre un fonctionnement extrêmement silencieux, assurant confort tant à l'intérieur qu'à l'extérieur de la maison.
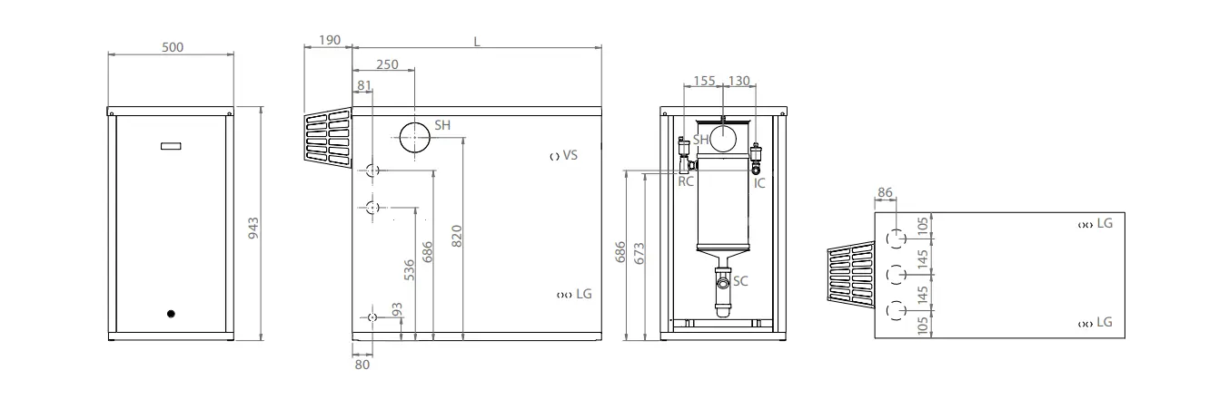
Le modèle JAKA HFD 20 CONDENS OD est conçu pour une installation simple et polyvalente. Il peut s'adapter à différentes configurations de systèmes de chauffage et permet l'évacuation des gaz par tubes en polypropylène, ce qui simplifie le montage et réduit les coûts associés. De plus, il inclut un panneau de commande complet et facile à utiliser, avec des fonctions telles que thermostat anti-gel, thermohygromètre et interrupteur lumineux marche/arrêt.
La chaudière Domusa JAKA HFD 20 CONDENS OD est une solution idéale pour les maisons individuelles et les locaux nécessitant d'optimiser l'espace intérieur en installant l'équipement de chauffage à l'extérieur. Son design résistant, son efficacité énergétique et son faible entretien en font une option fiable pour les climats exigeants et les utilisateurs qui priorisent les économies et la durabilité.
Avec la Domusa JAKA HFD 20 CONDENS OD, l'utilisateur bénéficie d'une chaudière robuste, efficace et adaptée aux besoins modernes, garantissant confort thermique et un investissement durable.